Shop Drawings/ As-built Drawings
Shop Drawings/ As-built Drawings
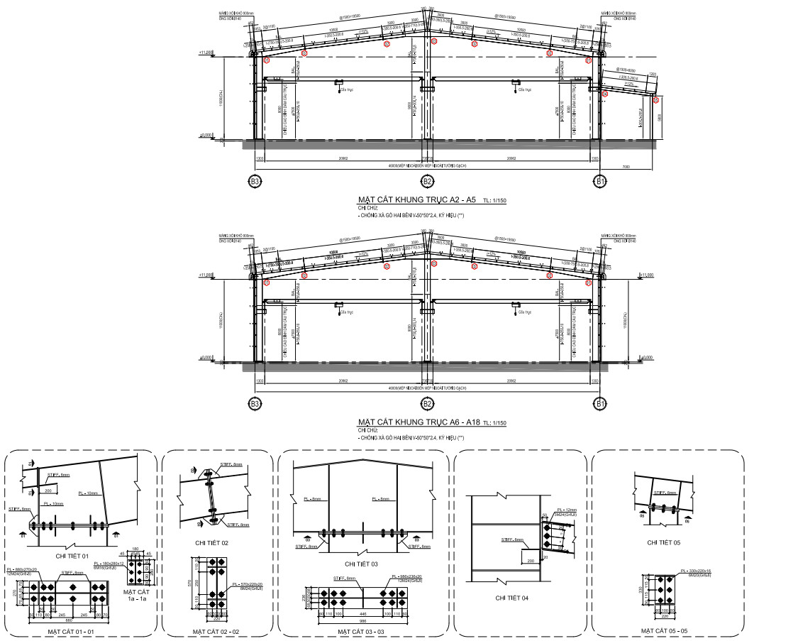
Our service is applied to deploying drawings automatically from BIM model, with the target of optimizing time to deploy drawings exported from BIM model with more accuracy than deploying drawings from traditional 2D CAD. When there is an adjustment/change in the design plan, the drawings will automatically update the positions that need to be changed, thereby shortening the implementation time, saving time and costs for designer as well as client.
The shop drawings generated by our team prove to be beneficial for architects, contractors, sub-contractors, fabricators, manufacturers, suppliers, owners, and developers during various stages of the project. Our extensive experience in dealing with residential, commercial, industrial, institutional, government, and infrastructural projects make us a one-stop solution for all of needs customer.